10000 руб.
25000 руб.
ГОТОВЫЙ ПРОЕКТ КАРКАСНОГО ДОМА
----------------------------------------------------------------—
Очень интересный проект для тех у кого рельефный участок и имеется перепад высот.
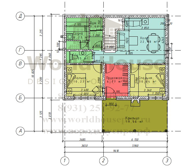
Одноэтажный каркасный дом с цокольным этажом. По факту же мы имеем два полноценных этажа общей площадью 170 м2.
На цокольном этаже расположились сауна, две спальни и просторный холл, а также имеется прямой выход на улицу.
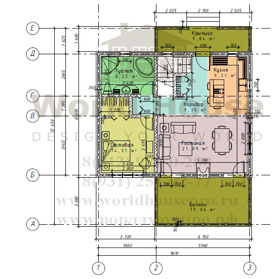
На первом этаже: кухня-гостинная и два выхода на террасу и крыльцо.
----------------------------------------------------------------—
По всем вопросам:
8 (800) 200-1-789 - бесплатный звонок по России.
8 (812) 987-0-200 Санкт - Петербург
8 (495) 008-8-475 Москва
:format(png)/45169ee7c04f028.s.siteapi.org/img/d23b1d6ec824a66feb15d23a15a8cda3c484e485.jpg)
:format(png)/45169ee7c04f028.s.siteapi.org/img/e9f366e272d4275f82ec6c8d75594283160d0145.png)
:format(png)/45169ee7c04f028.s.siteapi.org/img/b5436f28f8883976b26181456319c520fb0e8121.png)
:format(png)/45169ee7c04f028.s.siteapi.org/img/38d7347f56f9633c078985fb42655dc8ed7c7883.png)