10000 руб.
23000 руб.
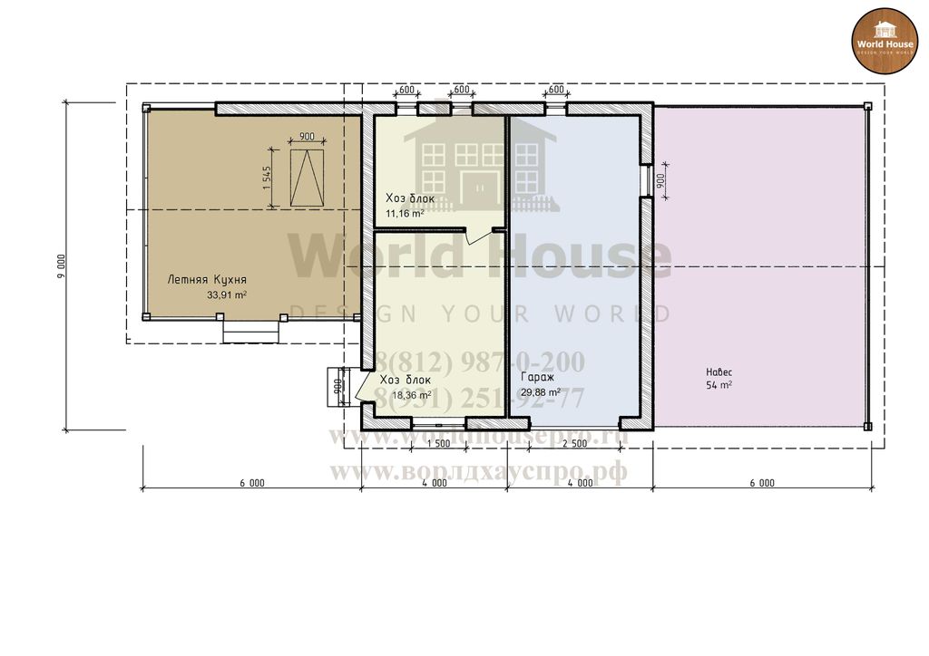
Проект одноэтажного здания из газобетона с отделкой имитацией бруса. Здание является второстепенным строением на участке, вмещает в себя, навес для автомобилей, гараж, хозяйственные комнаты и уютную летнюю кухню с мангалом. Данный проект был разработан и вписан в окружающую застройку участка.
Фундамент плита, покрытие кровли металлочерепица.
:format(png)/45169ee7c04f028.s.siteapi.org/img/9b578a32343eaf7ea2720386203b0d4a36c86236.jpg)
:format(png)/45169ee7c04f028.s.siteapi.org/img/31ee4098b4580ff96f24bd3bc6410b9a20d0cdb7.png)