10000 руб.
35000 руб.
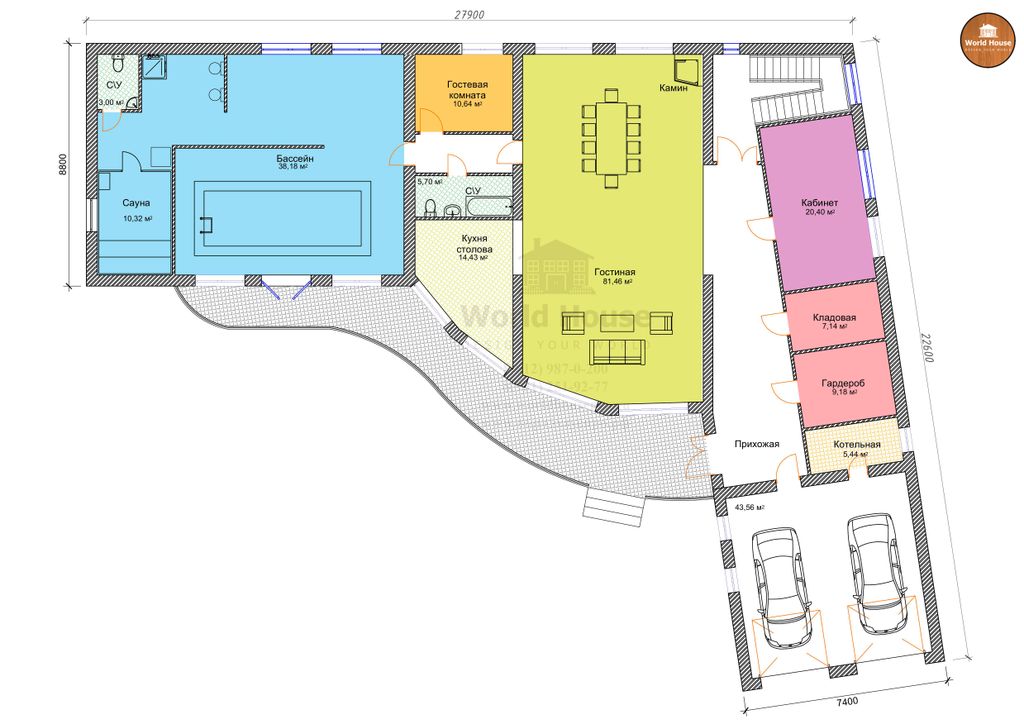
Просторный двухэтажный коттедж с бассейном и техническим подпольем.
Наружные стены выполнены из Газобетона 400мм и облицованы панелями под дерево.
Фундамент -монолитная плита, стены технического подполья и фундамент подполья - так же монолит.
Межэтажные перекрытия - монолитная плита;
Кровля - многоскатная, из за больших пролетов применены LVL балки. Покрытие гибкая черепица.
Дом имеет необычную конфигурацию так как вписывался в конкретный участок, имеющий не ровную геометрическую форму.
:format(png)/45169ee7c04f028.s.siteapi.org/img/20e2e5062651695d6fe01310f6ee0bd0e39ec8f1.png)
:format(png)/45169ee7c04f028.s.siteapi.org/img/31ee4098b4580ff96f24bd3bc6410b9a20d0cdb7.png)
:format(png)/45169ee7c04f028.s.siteapi.org/img/9b578a32343eaf7ea2720386203b0d4a36c86236.jpg)