10000 руб.
33000 руб.
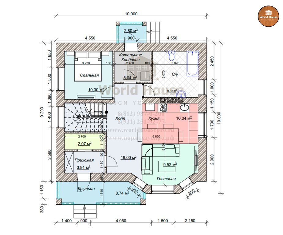
Двухэтажный дом в английском стиле.
Наружные стены: Газобетон 375+50мм каменная вата + 40мм вент зазор + 85мм кирпич.
Внутренние несущие стены и перегородки - газобетон;
Фундамент- монолитная плита 300мм;
Межэтажные перекрытия - сборно монолитные;
Чердачное перекрытие - деревянное , утепленное;
Стропильная система деревянная, чердак холодный.
:format(png)/45169ee7c04f028.s.siteapi.org/img/e7194915b470df2d7151e3982d0dba0555e64198.jpg)
:format(png)/45169ee7c04f028.s.siteapi.org/img/e3272149782a07a046616ec38e05ee9832252443.jpg)
:format(png)/45169ee7c04f028.s.siteapi.org/img/84be335693166296829461b7f8767ceca29c9dfd.png)