Проект дома с мансардой, открытой террасой и гаражом №107.

Проект дома с мансардой, открытой террасой и гаражом №107.
10000 руб.
27600 руб.

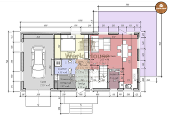
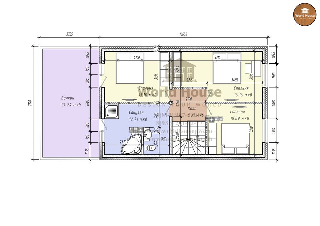
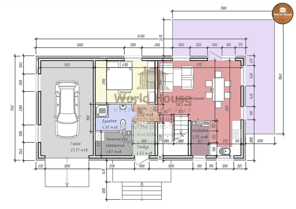
Проект дома - один этаж и мансарда. Открытая терраса и гараж



Фундамент: Монолитная плита с ребрами жесткости.
Стены: Железобетонные панели заводского изготовления с облицовкой термопанелями.

Перекрытие межэтажное: сборные многопустотные плиты.

Кровля: утепленная, покрытие гибкая черепица.

Проект дома - один этаж и мансарда. Открытая терраса и гараж



Фундамент: Монолитная плита с ребрами жесткости.
Стены: Железобетонные панели заводского изготовления с облицовкой термопанелями.

Перекрытие межэтажное: сборные многопустотные плиты.

Кровля: утепленная, покрытие гибкая черепица.