24000 руб.
Дом шалаш. Проект треугольного a frame дома.
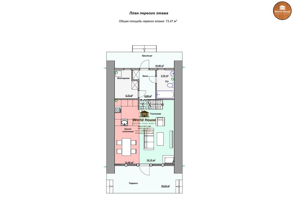
Площадь без террас и балконов - 64м2
Общая площадь - 93м2
Фундамент - винтовые сваи 108мм
Стены и кровля- каркасная технология с утеплением 200мм
Кровля - мягкая черепица
Площадь без террас и балконов - 64м2
Общая площадь - 93м2
Фундамент - винтовые сваи 108мм
Стены и кровля- каркасная технология с утеплением 200мм
Кровля - мягкая черепица
Следите за новостями:
1. Ютуб https://www.youtube.com/WorldHousePro
2. Инстаграм - https://www.instagram.com/worldhousepro/
3. ВК - https://vk.com/worldhousepro
Данный проект разработан компанией "WorldHousePro".
За указанную стоимость Вы получаете следующий состав проекта.
1.Раздел АР (Архитектурные Решения):
- Поэтажные план, спецификации стеновых материалов, перемычек, окон и дверей;
- Разрезы 2 шт., с указанием состава(«пирогов») всех конструкций;
- Узлы по примыканиям всех конструкций;
- План кровли;
- Фасады в цвете с указанием высотных отметок;
- Кладочные фасады.
Раздел КР (Конструктивные Решения)
- Чертежи по подготовительным работам, устройства подготовки под устройство фундамента;
- Свайное поле (при наличии);
- КЖ (Конструкции Железобетонные). Армирование, опалубочные чертежи и спецификации материалов на все железобетонные конструкции: фундамент, армопояса, перемычки, плиты перекрытия. Необходимые конструктивные узлы.
- КД (Конструкции деревянные). Раскладка балок чердачного перекрытия, стропильная система. спецификации деревянных элементов. Необходимые конструктивные узлы. Развертки каркасных стен (при наличии).
Раздел ИО (Инженерное Оборудования)
- Расстановка вентиляционных каналов и вентиляционных клапанов, спецификации;
- Устройство проходных гильз и закладных деталей в несущих элементах под канализацию, водопровод, электроснабжение).
- Полноценный проект по инженерному оборудованию и системам.