Одноэтажный дом с мансардой из бревна. Проект №131

Одноэтажный дом с мансардой из бревна. Проект №131
33000 руб.

Готовый проект одноэтажного дома из бревна. 


Просторный дом из бревна, отличное решение для большой семьи. 
5 спален, одну из которых спокойно можно использовать в роли кабинета.

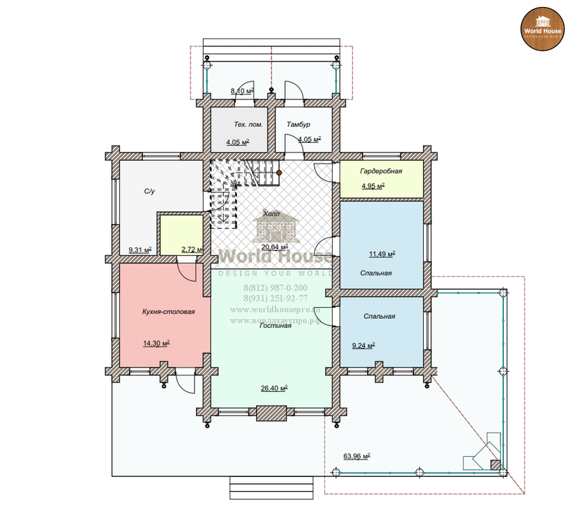
Два просторных санузла на двух этажах не заставит никого ждать своей очереди в "часы пик".
Две гардеробные. Одна общедоступна для всех и в основном используется, для зимней одежды. 
Вторая в хозяйской комнате и по площади занимает аж почти 10 м2.
Просторный холл переходящий в гостинную создает единое пространство. 
Также из плюсов данного дома стоит отметить кладовую выходящую из кухни. 
Ну и конечно же просторная терраса, с зоной барбекю.


Общая площадь дома почти 200м2. 

Готовый проект одноэтажного дома из бревна. 


Просторный дом из бревна, отличное решение для большой семьи. 
5 спален, одну из которых спокойно можно использовать в роли кабинета.

Два просторных санузла на двух этажах не заставит никого ждать своей очереди в "часы пик".
Две гардеробные. Одна общедоступна для всех и в основном используется, для зимней одежды. 
Вторая в хозяйской комнате и по площади занимает аж почти 10 м2.
Просторный холл переходящий в гостинную создает единое пространство. 
Также из плюсов данного дома стоит отметить кладовую выходящую из кухни. 
Ну и конечно же просторная терраса, с зоной барбекю.


Общая площадь дома почти 200м2.