Дом - шалаш 70м2. Проект №149

Дом - шалаш 70м2. Проект №149
17500 руб.
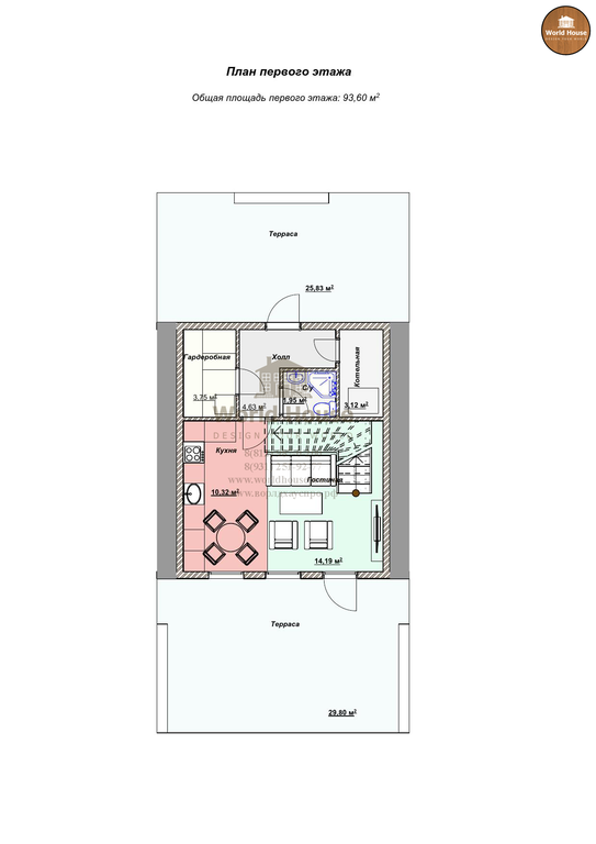
29800 руб.

ДОМ - ШАЛАШ - 70м2


Нестандартный, но очень привлекательный проект дома - шалаша.

Кровля которого выполнена из мягкой черепицей.

Наружные стены дома так  же выполнены по каркасной технологии с отделкой доской планкен коричневого цвета, подшивка свесов и ветровая планка - строгонная доска окрашена в оранжевый цвет.
Фундамент бетонные забивные сваи 150х150мм.Утепление крови и стен 250мм.

Внутренняя отделка имитацией бруса.


Проект всегда можно изменить и переработать под Вас. 
Изменить не только площадь и размеры дома, но также материал и прочие конструктивные элементы.

По всем вопросам:
8 (800) 200-1-789 - звонок бесплатный
8 (931) 251-92-77 - звоните, пишите ватсап/вайбер

ДОМ - ШАЛАШ - 70м2


Нестандартный, но очень привлекательный проект дома - шалаша.

Кровля которого выполнена из мягкой черепицей.

Наружные стены дома так  же выполнены по каркасной технологии с отделкой доской планкен коричневого цвета, подшивка свесов и ветровая планка - строгонная доска окрашена в оранжевый цвет.
Фундамент бетонные забивные сваи 150х150мм.Утепление крови и стен 250мм.

Внутренняя отделка имитацией бруса.


Проект всегда можно изменить и переработать под Вас. 
Изменить не только площадь и размеры дома, но также материал и прочие конструктивные элементы.

По всем вопросам:
8 (800) 200-1-789 - звонок бесплатный
8 (931) 251-92-77 - звоните, пишите ватсап/вайбер