Каркасный дом в стиле шале. Проект №111.

Каркасный дом в стиле шале. Проект №111.

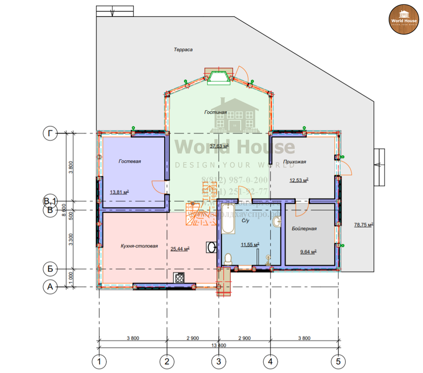
Каркасный двухэтажный дом в стиле Шале.


Очень стильный современный каркасный дом с большими панорамными окнами. 

Просторный и очень уютный.

Фундамент - УШП

Стены - каркасные, с утеплением каменной ватой. 

Отделка - имитация бруса и клинкерная плитка под камень.

Кровля - мягкая черепица.


Данный проект не продается. И выставлен только для ознакомления.

Каркасный двухэтажный дом в стиле Шале.


Очень стильный современный каркасный дом с большими панорамными окнами. 

Просторный и очень уютный.

Фундамент - УШП

Стены - каркасные, с утеплением каменной ватой. 

Отделка - имитация бруса и клинкерная плитка под камень.

Кровля - мягкая черепица.


Данный проект не продается. И выставлен только для ознакомления.