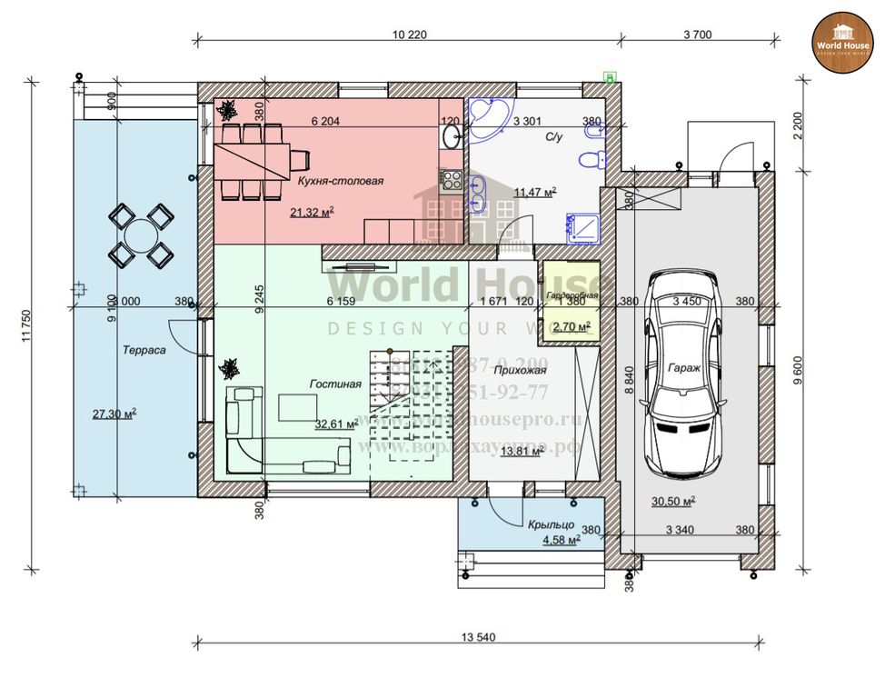
Двухэтажный дом в современном стиле с гаражом. Проект №106

Двухэтажный дом в современном стиле с гаражом. Проект №106
37000 руб.

Двухэтажный дом в современном стиле с гаражом


Фундамент: Плита, УШП, лента

Наружные стены: Керамоблок/газобетон

Внутренние несущие и перегородки: Кирпич\газобетон
Межэтажные перекрытия: монолитная плита\сборные плиты перекрытия\деревянное перекрытие

Отделка: Керамогранит по системе вент фасада.

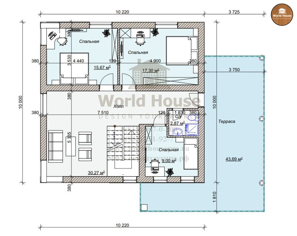
Двухэтажный дом в современном стиле с гаражом


Фундамент: Плита, УШП, лента

Наружные стены: Керамоблок/газобетон

Внутренние несущие и перегородки: Кирпич\газобетон
Межэтажные перекрытия: монолитная плита\сборные плиты перекрытия\деревянное перекрытие

Отделка: Керамогранит по системе вент фасада.