10000 руб.
21000 руб.
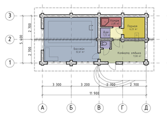
ПРОЕКТ ДЕРЕВЯННОЙ БАНИ ИЗ БРЕВНА С БАССЕЙНОМ 
-----------------------------------------------------------------------------------------------------
Проект русской рубленной бани из бревна.
Баня в которой расположились, как русская парная, так и хамам!
А еще есть просторное помещение с бассейном.
---------------------------------------------------------------------------------------------—
По всем вопросам:
 8 (800) 200-1-789 - бесплатный звонок по России.
--------------------------------------------------------—
 to@worldhousepro.ru - Технический отдел
 pro@worldhousepro.ru - Сотрудничество/Коммерческие предложения
:format(png)/45169ee7c04f028.s.siteapi.org/img/b08ebdcf77377f24c04ac3f2ff0f90da2b3508e6.png)
:format(png)/45169ee7c04f028.s.siteapi.org/img/82d7760403ce2e354f722625c949581f30186604.png)