19000 руб.
34000 руб.
Двухэтажный современный коттедж с плоской кровлей.
Фундамент-монолитная плита с ростверком;
Стены наружные - газобетон 400мм с навесным фасадом и облицовкой панелями KMEW.
Внутренние несущие стены и перегородки газобетон;
Межэтажное перекрытие из сборных ж/б плит;
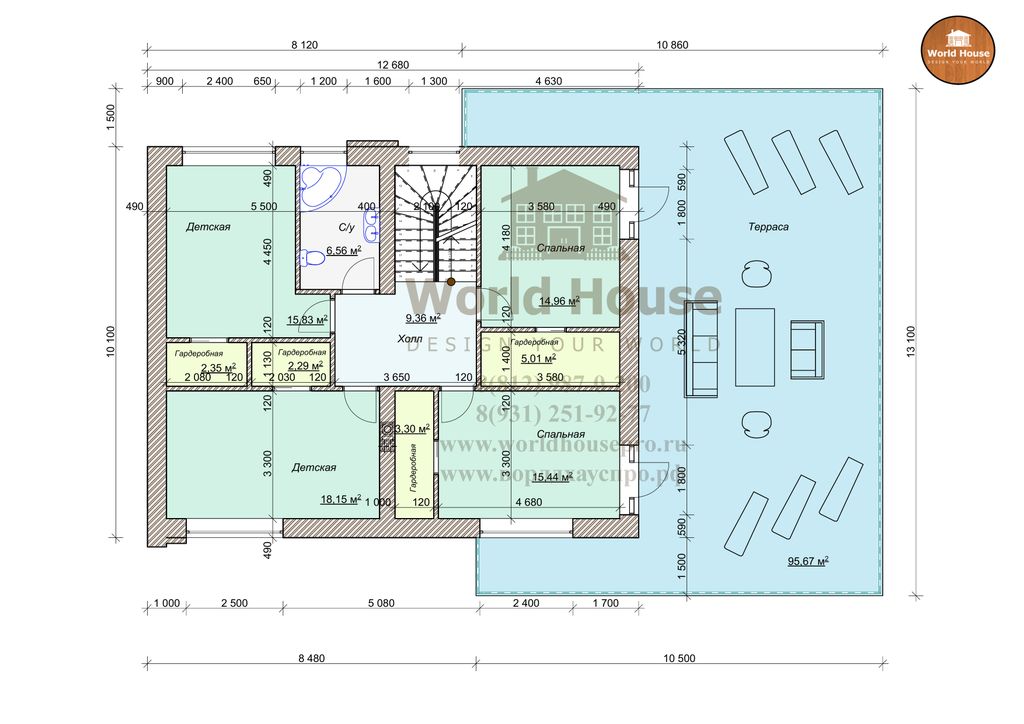
Эксплуатируемая терраса с выходом из спален второго этажа;
Кровля второго этажа плоская - неэксплуатируемая, утеплитель каменная вата и гидроизоляционное покрытие мембранного типа.
Отопление первого этажа предусморенно теплыми полами и радиаторами, второй этаж только радиаторное отопление.
Система Водопровода - коллекторная;
Вентиляция естественная во влажных помещениях через вентшахты в стенах.
:format(png)/45169ee7c04f028.s.siteapi.org/img/e7194915b470df2d7151e3982d0dba0555e64198.jpg)